Questo sito utilizza cookie, anche di terze parti, per inviarti pubblicità in linea con le tue preferenze ed ottenere statistiche sull'utilizzo del Sito. ACCETTO LEGGI

/ vendita / uffici / Perugia / stazione /

UFFICIO VENDITA PERUGIA STAZIONE

AMPIO UFFICIO ADIACENTE A CENTRO DIREZIONALE

Via Mario Angeloni Perugia (PG) - Stazione

€ 140.000 120m2 2

VUOI SAPERE CHE MUTUO RICHIEDERE? POSSIAMO FINANZIARE FINO AL 95% DEL PREZZO DI ACQUISTO!

SCOPRILO SUBITO

DESCRIZIONE

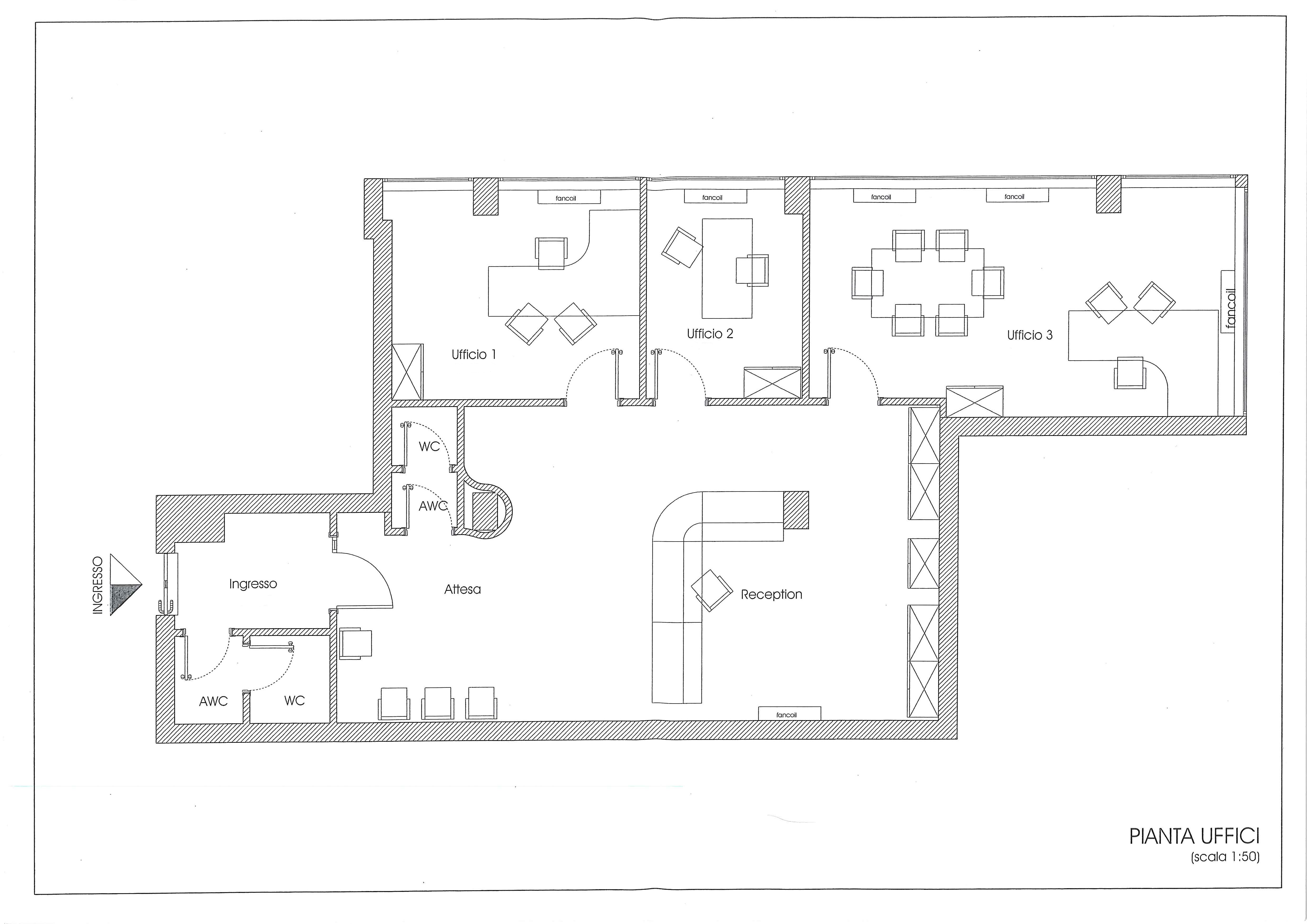
Via Mario Angeloni - In posizione centrale e ben servita dalle principali strade, adiacente al centro direzionale di Perugia, ampio locale ad uso ufficio di circa 120mq, posto al quarto piano e servit o da ascensore. Il locale si compone di: ingresso, ampia sala d’attesa con reception, tre uffici e doppi servizi con antibagno. Possibilità di personalizzazione e divisione degli interni.

Realizza è un grande network di Property Finder che opera su tutto il territorio nazionale, una rete di professionisti dell’immobiliare specializzati nella selezione mirata degli immobili e in tutte le operazioni necessarie a condurti in un percorso di compravendita rapido, sicuro e senza pensieri.

Gli uffici Realizza sono spazi multiservizio organizzati per rispondere ad ogni tua esigenza con servizi integrati nella ricerca dell’immobile che stai cercando ma anche nelle migliori modalità di selezione, verifica e finanziamento per il suo acquisto.

Per chi compra

Conoscere profondamente il mercato immobiliare, disporre di una rete di contatti e di strumenti professionali altamente innovativi, consente al Property Finder di analizzare il mercato nella sua interezza, valutando e selezionando in tempi brevi solo il meglio, ossia la soluzione che risponde davvero alle richieste del Cliente.

Dalla ricerca della casa perfetta fino alla sua verifica e alla firma del rogito in tutta sicurezza: ottimizziamo tutte le fasi del tuo acquisto.

Per chi vende

Una grande rete, importanti partnership e un portfolio clienti selezionato e profilato finanziariamente.

Grazie alle loro competenze tecniche, alla conoscenza del mercato e ad una rete di partner esperti ed affidabili (consulenti creditizi, periti, notai, legali), i nostri Property Finder sono professionisti specializzati che garantiscono il vantaggio di trovare esattamente il cliente perfetto per il tuo immobile, occupandosi di tutte le operazioni e verifiche necessarie a concludere l’affare in modo sereno.

Per chi affitta

Il nostro settore affitti opera con costante presenza su tutto il territorio. Una selezionata offerta di immobili presenti nel nostro portafoglio, conferiscono alla nostra agenzia una dimensione di tutto rispetto nel panorama immobiliare del Perugino.

Competenza ed esperienza del personale dell’agenzia fa si che ogni esperienza del cliente, legata al mondo immobiliare, trovi una risposta tempestiva e soddisfacente sempre all’altezza delle proprie aspettative.

CARATTERISTICHE

RIFERIMENTO e DATA ANNUNCIO

28/06/2023

CONTRATTO

Vendita

TIPOLOGIA

Ufficio

SUPERFICIE

120 m2

BAGNI

2

PIANO

4° piano

VISITABILE

SI

ASCENSORE

SI

ALTRE CARATTERISTICHE

Ottima posizione Parcheggio condominiale Vicino a tutti i servizi

Trova il tuo
IMMOBILE IDEALE

Cerco Dove A

Approfondisci ricerca

Prezzo da - a

Mq da - a

ALTRE PROPOSTE DELL'AGENZIA IMMOBILIARE: PROFESSIONE CASA

ALTRE PROPOSTE PER UFFICIO NEL COMUNE DI PERUGIA

Ricerche più frequenti nel comune di Perugia

Altre ricerche nella provincia di Perugia

Ricerche più frequenti nel comune di Terni

Altre ricerche nella provincia di Terni