Questo sito utilizza cookie, anche di terze parti, per inviarti pubblicità in linea con le tue preferenze ed ottenere statistiche sull'utilizzo del Sito. ACCETTO LEGGI

/ vendita / rustici e casali / Marsciano / castello delle forme /

RUSTICO - CASALE VENDITA MARSCIANO CASTELLO DELLE FORME

Marsciano (PG) - Castello Delle Forme

€ 280.000 800m2 8 1

VUOI SAPERE CHE MUTUO RICHIEDERE? POSSIAMO FINANZIARE FINO AL 95% DEL PREZZO DI ACQUISTO!

SCOPRILO SUBITO

DESCRIZIONE

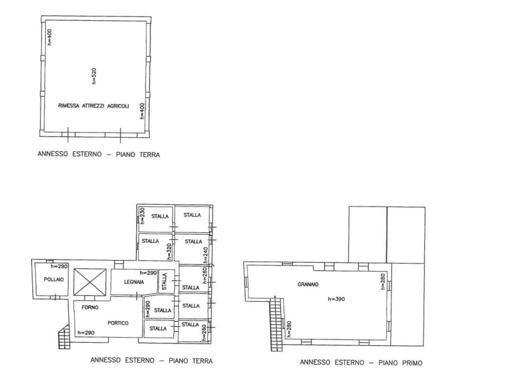
MARSCIANO - CASTELLO DELLE FORME: Immerso nelle verdi colline umbre vendiamo antico borgo rurale composto da tipico casale su due livelli con scala esterna, adiacente annesso ed essiccatoio/magazzino. \nComplessivi 800 mq c.a.\nPossibilità di ampliamento. \nTerreno circostante recintato di circa 5.000 mq. \nRichiesta € 280.000,00 \nCodice Annuncio V/492

CARATTERISTICHE

RIFERIMENTO e DATA ANNUNCIO

22/02/2024

CONTRATTO

Vendita

TIPOLOGIA

Rustico - casale

SUPERFICIE

800 m2

VANI

12

CAMERE

8

BAGNI

1

ALTRE CARATTERISTICHE

Camino Giardino

Trova il tuo
IMMOBILE IDEALE

Cerco Dove A

Approfondisci ricerca

Prezzo da - a

Mq da - a

ALTRE PROPOSTE DELL'AGENZIA IMMOBILIARE: STIM IMMOBILIARE

ALTRE PROPOSTE PER RUSTICO - CASALE NEL COMUNE DI MARSCIANO

Ricerche più frequenti nel comune di Perugia

Altre ricerche nella provincia di Perugia

Ricerche più frequenti nel comune di Terni

Altre ricerche nella provincia di Terni