Questo sito utilizza cookie, anche di terze parti, per inviarti pubblicità in linea con le tue preferenze ed ottenere statistiche sull'utilizzo del Sito. ACCETTO LEGGI

/ vendita / ville / Assisi /

VILLA VENDITA ASSISI

Assisi, Via Panzini Assisi (PG)

€ 175.000 110m2 1 1

VUOI SAPERE CHE MUTUO RICHIEDERE? POSSIAMO FINANZIARE FINO AL 95% DEL PREZZO DI ACQUISTO!

SCOPRILO SUBITO

DESCRIZIONE

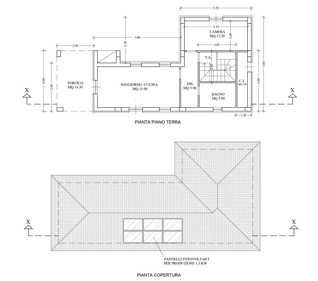
Vendesi villetta singola da ultimare, attualmente sono stati portati a termine i lavori delle fondazioni e del piano interrato. \nLa posizione, la vicinanza dei servizi, la comodità dell\'accesso privato, la tranquillità e il panorama mozzafiato sull\'intero centro storico di Assisi, ne contraddistinguono l\'unicità.\nL\'immobile, parzialmente costruito, è composto da un piano interrato con taverna e cantina e da un piano superiore ancora da realizzare nella porzione al piano terra. \nIl tetto sarà dotato di pannelli fotovoltaici e in giardino sarà collocata una cisterna interrata per la raccolta delle acque reflue, in aggiunta al pozzo già esistente.\nE\' inoltre possibile l\'ampliamento tramite l\'ulteriore costruzione di una serra solare e di una pertinenza.\nIl prezzo si riferisce allo stato attuale dell\'immobile e non alla villa nella sua interezza, che deve ancora essere realizzata.\nCompleta la proprietà un terreno di mq 2500.\nPer info e appuntamenti contattare Roberto Settonce 328.9519484

CARATTERISTICHE

RIFERIMENTO e DATA ANNUNCIO

Villetta SMA - 02/08/2024

CONTRATTO

Vendita

TIPOLOGIA

Villa

SUPERFICIE

110 m2

VANI

6

CAMERE

1

BAGNI

1

ALTRE CARATTERISTICHE

Pannelli solari Veranda Cantina

Trova il tuo
IMMOBILE IDEALE

Cerco Dove A

Approfondisci ricerca

Prezzo da - a

Mq da - a

ALTRE PROPOSTE DELL'AGENZIA IMMOBILIARE: SINERGIE IMMOBILIARE

ALTRE PROPOSTE PER VILLA NEL COMUNE DI ASSISI

Ricerche più frequenti nel comune di Perugia

Altre ricerche nella provincia di Perugia

Ricerche più frequenti nel comune di Terni

Altre ricerche nella provincia di Terni