Questo sito utilizza cookie, anche di terze parti, per inviarti pubblicità in linea con le tue preferenze ed ottenere statistiche sull'utilizzo del Sito. ACCETTO LEGGI

/ vendita / ville a schiera / Magione /

VILLA A SCHIERA VENDITA MAGIONE

Via Dei Prati Fioriti 13 Magione (PG)

€ 170.000 295m2 3 3

VUOI SAPERE CHE MUTUO RICHIEDERE? POSSIAMO FINANZIARE FINO AL 95% DEL PREZZO DI ACQUISTO!

SCOPRILO SUBITO

DESCRIZIONE

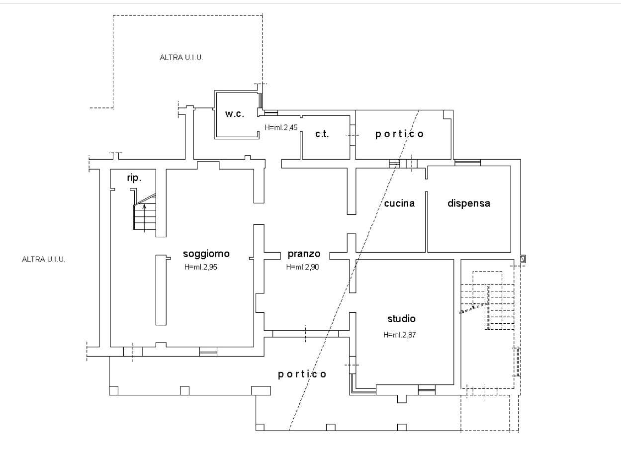
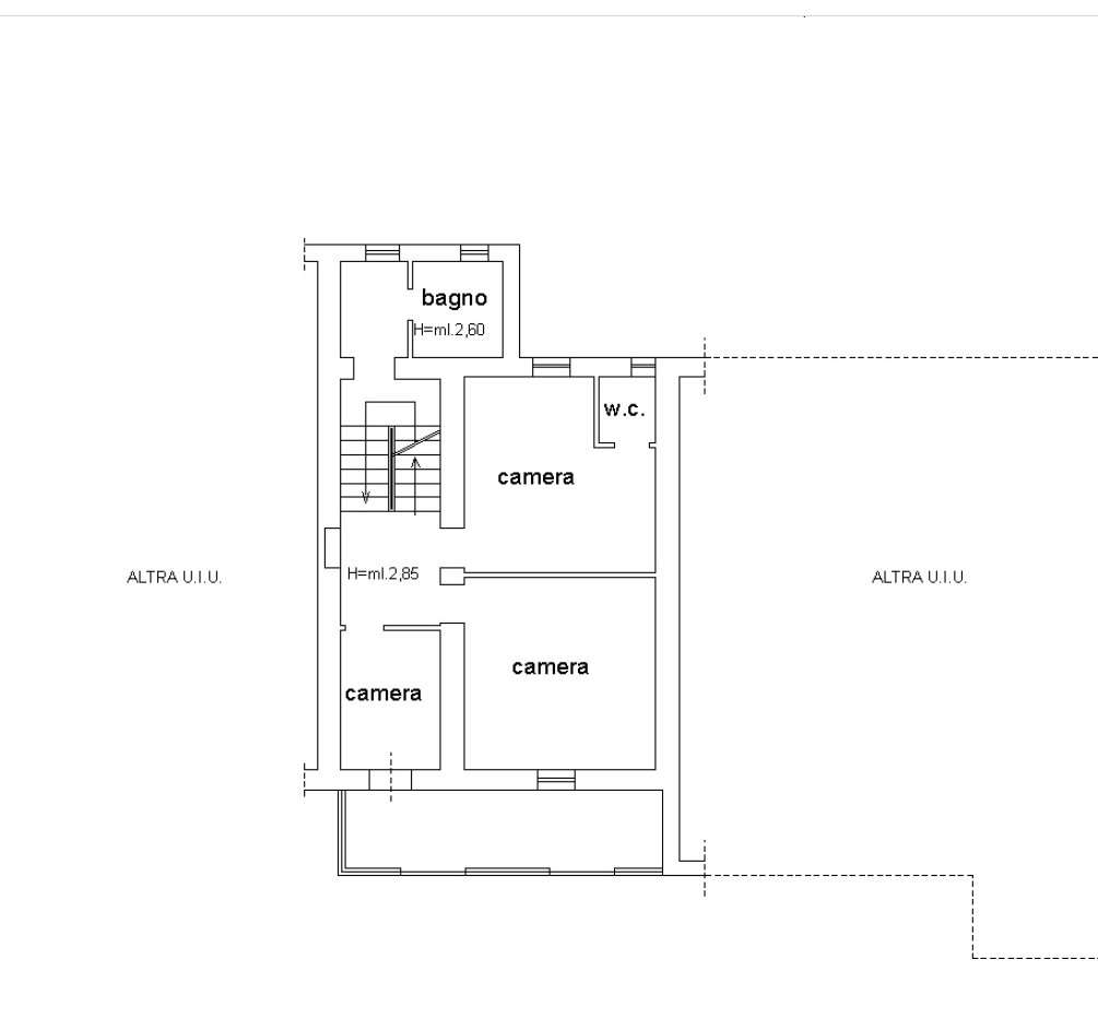
Magione, zona residenziale a due passi dal centro. Vendesi appartamento in villa con giardino fronte-retro. COMPRESO UTILIZZO DI POZZO (in comproprietà) . L\'appartamento è disposto su due livelli. Al piano terra abbiamo un ampio ingresso, salone doppio, grande sala da pranzo, cucina abitabile. Inoltre studio o camera matrimoniale. Completa il piano terra una grande cantina, un bagno, locale tecnico e garage grande. Ampie scale interne ci conducono al mezzanino con disimpegno e bagno, altre piccola rampa ci conduce al piano primo con due grandi camere (una con bagno interno) una camera piccola e un terrazzo. Inoltre soffitta non praticabile di ca 50 mq. L\'esterno è composto da un grande portico, una vasta corte pavimentata, una rata di terreno. Dotato di ingresso indipendente con cancello elettrico. Le condizioni interne sono discrete, necessita di qualche lavoro di ammodernamento ma l\'immobile si distingue per i grandi spazi interne che ne fanno un immobile unico nel suo genere. POSSIBILITA\' DI ACQUISTO DI PORZIONE DI CASA COMPOSTA DA PIANO TERRA ZONA GIORNO, PRIMO PIANO 3 CAMERE E BAGNO PIU\' SOFFITTA E GIARDINO AL PIANO TERRA PER CA 140 MQ. (COME DA PLANIMETRIE ALLEGATE) RICHIESTA 80.000

CARATTERISTICHE

RIFERIMENTO e DATA ANNUNCIO

V002479 - 15/12/2025

CONTRATTO

Vendita

TIPOLOGIA

Villa a schiera

SUPERFICIE

295 m2

VANI

9

CAMERE

3

BAGNI

3

CLASSE ENERGETICA

F

ALTRE CARATTERISTICHE

Camino Porta blindata Veranda Accesso Disabili Balcone Giardino Riscaldamento autonomo

Trova il tuo
IMMOBILE IDEALE

Cerco Dove A

Approfondisci ricerca

Prezzo da - a

Mq da - a

ALTRE PROPOSTE DELL'AGENZIA IMMOBILIARE: SINERGIE IMMOBILIARE

ALTRE PROPOSTE PER VILLA A SCHIERA NELLA PROVINCIA DI PERUGIA

Ricerche più frequenti nel comune di Perugia

Altre ricerche nella provincia di Perugia

Ricerche più frequenti nel comune di Terni

Altre ricerche nella provincia di Terni