Questo sito utilizza cookie, anche di terze parti, per inviarti pubblicità in linea con le tue preferenze ed ottenere statistiche sull'utilizzo del Sito. ACCETTO LEGGI

/ vendita / uffici / Perugia / pallotta /

UFFICIO VENDITA PERUGIA PALLOTTA

Via Cino da Pistoia 48 Perugia (PG) - Pallotta 06126

€ 280.000 385m2 3

VUOI SAPERE CHE MUTUO RICHIEDERE? POSSIAMO FINANZIARE FINO AL 95% DEL PREZZO DI ACQUISTO!

SCOPRILO SUBITO

DESCRIZIONE

Zona Pallotta – Perugia

Locale Commerciale in Ottime Condizioni

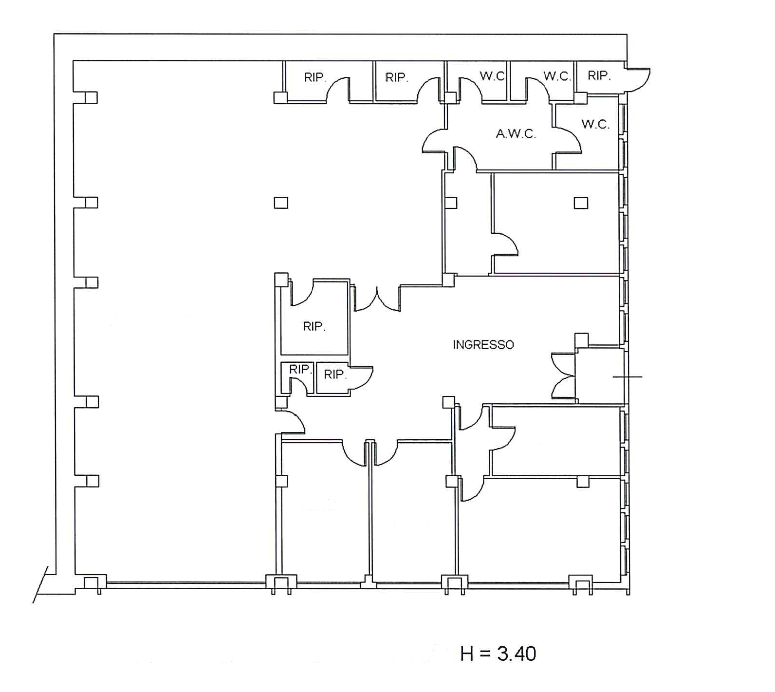
Proponiamo in vendita un ampio locale commerciale di circa 385 mq, con altezza di 3,4 metri, recentemente ristrutturato e in ottime condizioni.

L’immobile vanta molteplici ingressi autonomi, offrendo così un accesso indipendente e una versatilità ideale per diverse attività.

Attualmente è composto da: ingresso, ampia sala con vari accessi, cinque vani adibiti a uffici, Cucina attrezzata, Antibagno con tre servizi igienici, di cui uno predisposto per disabili, Vari ripostigli.

La ridistribuzione degli spazi interni può essere modificata con facilità, grazie alla presenza di muri divisori in cartongesso e tramezzi.

Dotazioni:

Pavimento in grès porcellanato;

Caldaia a condensazione;

Impianto di aria condizionata nella sala principale;

Ampia disponibilità di parcheggio.

Per visionare l’immobile, Contattare

Adi KORRIKU

320/0203731.

ADIMMOBILIARE

Connettiamo persone e proprietà, perfettamente.

Via Settevalli 133/C – Perugia (PG) UMBRIA.

Mob. 320/0203731

Mail: adimmobiliarepg@gmail.com

REA n. PG/354021

*le informazioni contenute in questo annuncio non costituiscono elemento contrattuale.

CARATTERISTICHE

RIFERIMENTO e DATA ANNUNCIO

27/05/2025

CONTRATTO

Vendita

TIPOLOGIA

Ufficio

SUPERFICIE

385 m2

BAGNI

3

ANNO COSTRUZIONE

1970

Trova il tuo
IMMOBILE IDEALE

Cerco Dove A

Approfondisci ricerca

Prezzo da - a

Mq da - a

ALTRE PROPOSTE DELL'AGENZIA IMMOBILIARE: ADIMMOBILIARE

ALTRE PROPOSTE PER UFFICIO NEL COMUNE DI PERUGIA

Ricerche più frequenti nel comune di Perugia

Altre ricerche nella provincia di Perugia

Ricerche più frequenti nel comune di Terni

Altre ricerche nella provincia di Terni