Questo sito utilizza cookie, anche di terze parti, per inviarti pubblicità in linea con le tue preferenze ed ottenere statistiche sull'utilizzo del Sito. ACCETTO LEGGI

/ vendita / terreni edificabili / Perugia / trinita /

TERRENO EDIFICABILE VENDITA PERUGIA TRINITA

Perugia (PG) - Trinita

€ 135.000 2650m2

VUOI SAPERE CHE MUTUO RICHIEDERE? POSSIAMO FINANZIARE FINO AL 95% DEL PREZZO DI ACQUISTO!

SCOPRILO SUBITO

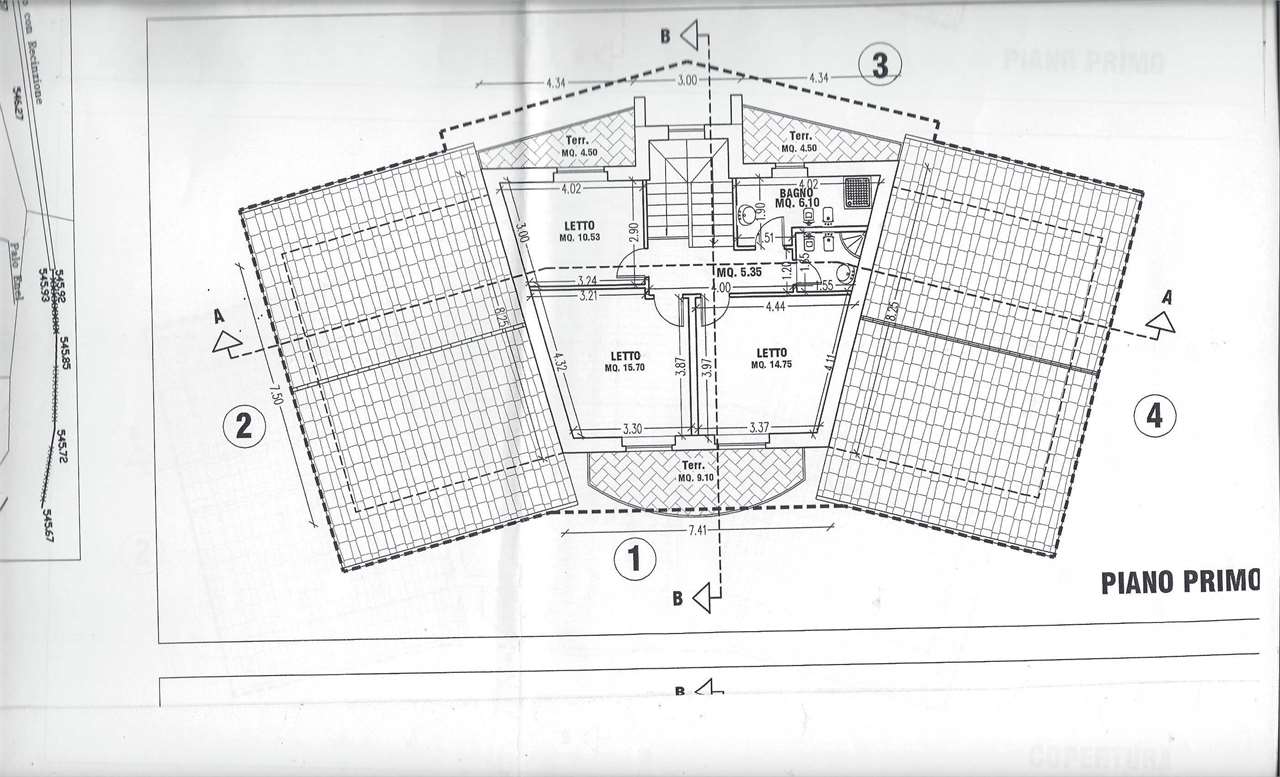
DESCRIZIONE

Frimm Sinergie Immobiliare, Vendesi terreni edificabile a Corciano Colle della Trinità in via dei Lecci. La zona è urbanizzata, caratterizzata da agglomerati residenziali lungo la strada principale, e terreni agricoli, ben collegata dalle principali vie di comunicazione. Disponiamo già di un progetto approvato con Bucalossi pagata per la realizzazione di una unifamiliare ma visto la cubatura possiamo ricavarci anche una bifamiliare. Il terreno misura 2650 mq. la cubatura attuale e di 640 mc. circa. Per ulteriori informazioni contatti il numero telefonico 3884778338

CARATTERISTICHE

RIFERIMENTO e DATA ANNUNCIO

V001634 - 09/01/2024

CONTRATTO

Vendita

TIPOLOGIA

Terreno edificabile

SUPERFICIE

2650 m2

VANI

10

CLASSE ENERGETICA

G

Trova il tuo
IMMOBILE IDEALE

Cerco Dove A

Approfondisci ricerca

Prezzo da - a

Mq da - a

ALTRE PROPOSTE DELL'AGENZIA IMMOBILIARE: SINERGIE IMMOBILIARE

ALTRE PROPOSTE PER TERRENO EDIFICABILE NEL COMUNE DI PERUGIA

Ricerche più frequenti nel comune di Perugia

Altre ricerche nella provincia di Perugia

Ricerche più frequenti nel comune di Terni

Altre ricerche nella provincia di Terni