Questo sito utilizza cookie, anche di terze parti, per inviarti pubblicità in linea con le tue preferenze ed ottenere statistiche sull'utilizzo del Sito. ACCETTO LEGGI

/ vendita / case indipendenti / Terni /

CASA INDIPENDENTE VENDITA TERNI

Borgo Rivo Terni (TR)

€ 169.000 trattabili 150m2 2 2

VUOI SAPERE CHE MUTUO RICHIEDERE? POSSIAMO FINANZIARE FINO AL 95% DEL PREZZO DI ACQUISTO!

SCOPRILO SUBITO

DESCRIZIONE

Terni Borgo Rivo, Via Scarlatti

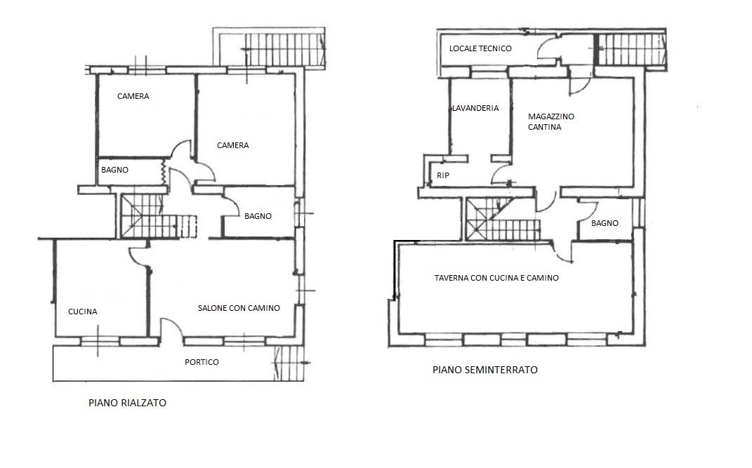
Casa Indipendente su tre lati ( Metà bifamiliare )

Ingresso indipendente e giardino di proprietà su tre lati.

Piano rialzato con portico, salone con camino, ampia cucina abitabile, 2 camere, bagno, servizio.

Piano seminterrato con ampia taverna, bagno, magazzino, cantina, lavanderia, accessori.

Buono stato generale, sia esternamente che nelle finiture interne. 

Possibilità di ottenere la terza camera sia al piano rialzato che al piano seminterrato.

Richiesta euro 169.000 trattabili.

Proposto da:

Agenzia Immobiliare EINHAUS

Piazza C. Tacito 2 Terni

REA TR 95202

Associata FIAIPCasa Indipendente su tre lati ( Metà bifamiliare )

Ingresso indipendente e giardino di proprietà su tre lati.

Piano rialzato con portico, salone con camino, ampia cucina abitabile, 2 camere, bagno, servizio.

Piano seminterrato con ampia taverna, bagno, magazzino, cantina, lavanderia, accessori.

Buono stato generale, sia esternamente che nelle finiture interne. 

Possibilità di ottenere la terza camera sia al piano rialzato che al piano seminterrato.

Richiesta euro 169.000 trattabili.

Proposto da:

Agenzia Immobiliare EINHAUS

Piazza C. Tacito 2 Terni

REA TR 95202

Associata FIAIPCasa Indipendente su tre lati ( Metà bifamiliare )

Ingresso indipendente e giardino di proprietà su tre lati.

Piano rialzato con portico, salone con camino, ampia cucina abitabile, 2 camere, bagno, servizio.

Piano seminterrato con ampia taverna, bagno, magazzino, cantina, lavanderia, accessori.

Buono stato generale, sia esternamente che nelle finiture interne. 

Possibilità di ottenere la terza camera sia al piano rialzato che al piano seminterrato.

Richiesta euro 169.000 trattabili.

Proposto da:

Agenzia Immobiliare EINHAUS

Piazza C. Tacito 2 Terni

REA TR 95202

Associata FIAIP

CARATTERISTICHE

RIFERIMENTO e DATA ANNUNCIO

10/03/2026

CONTRATTO

Vendita

TIPOLOGIA

Casa indipendente

SUPERFICIE

150 m2

VANI

5

CAMERE

2

BAGNI

2

POSTO AUTO

SI

ALTRE CARATTERISTICHE

Giardino Terrazzo coperto

Trova il tuo
IMMOBILE IDEALE

Cerco Dove A

Approfondisci ricerca

Prezzo da - a

Mq da - a

ALTRE PROPOSTE DELL'AGENZIA IMMOBILIARE: IMMOBILIARE EINHAUS DI PISTONE ROBERTO

ALTRE PROPOSTE PER CASA INDIPENDENTE NEL COMUNE DI TERNI

Ricerche più frequenti nel comune di Perugia

Altre ricerche nella provincia di Perugia

Ricerche più frequenti nel comune di Terni

Altre ricerche nella provincia di Terni