Questo sito utilizza cookie, anche di terze parti, per inviarti pubblicità in linea con le tue preferenze ed ottenere statistiche sull'utilizzo del Sito. ACCETTO LEGGI

/ vendita / appartamenti / Perugia / montelaguardia /

APPARTAMENTO VENDITA PERUGIA MONTELAGUARDIA

Via Gisa Giani 2 Perugia (PG) - Montelaguardia

€ 190.000 180m2 4 2

VUOI SAPERE CHE MUTUO RICHIEDERE? POSSIAMO FINANZIARE FINO AL 95% DEL PREZZO DI ACQUISTO!

SCOPRILO SUBITO

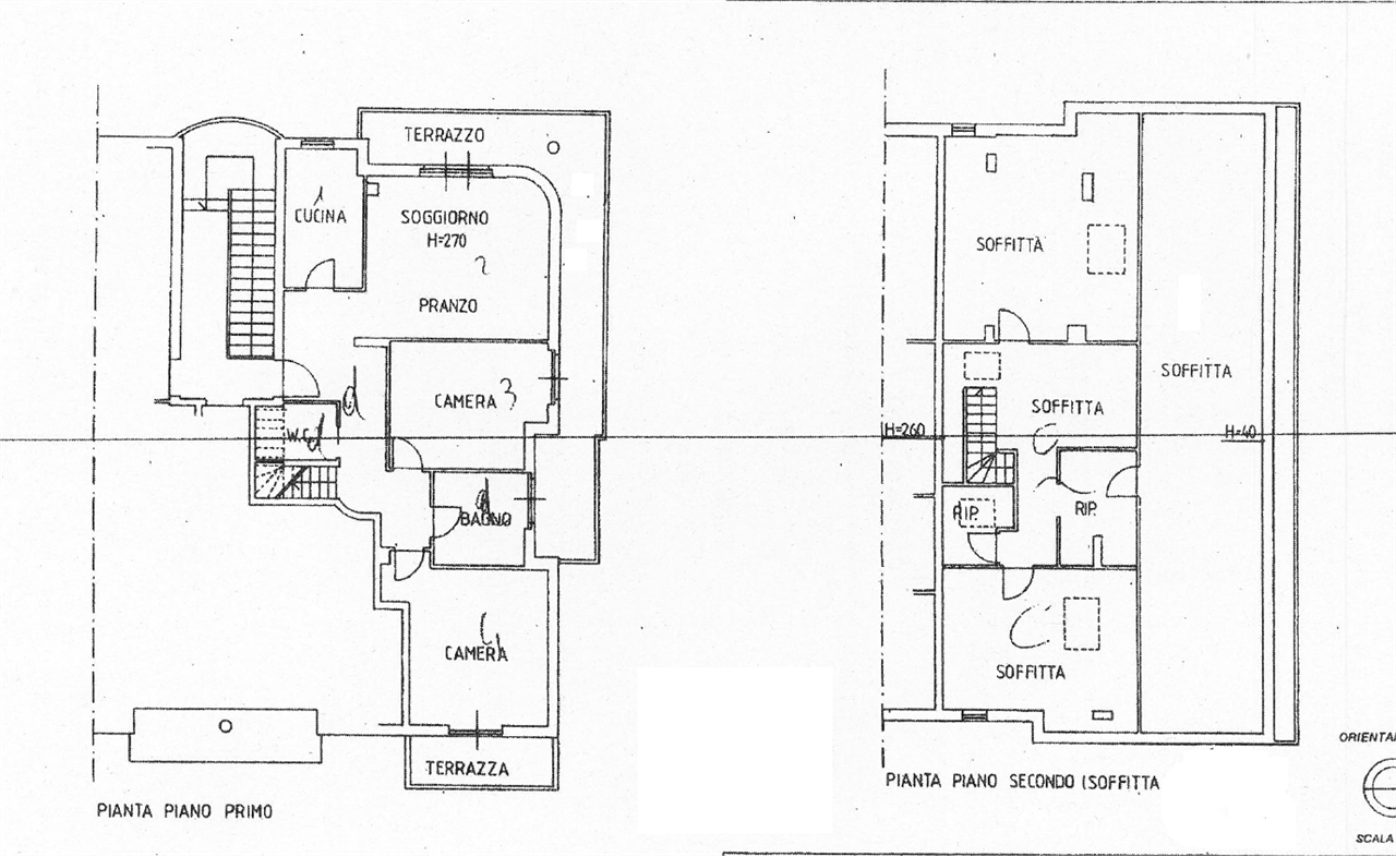
DESCRIZIONE

Perugia, zona Montelaguardia. In piccolo condominio di recente costruzione proponiamo appartamento al piano primo e secondo. Piano primo di circa 100 mq e secondo di 80 mansardato. Appartamento composto da: primo livello soggiorno, cucina, bagno, ripostiglio, due grandi camere e terrazzo di ca 32 mq. Secondo livello due camere ampio disimpegno e bagno più soffitta e ripostiglio. Inoltre dotato anche di garage. Tutto in ottime condizioni abitabile e libero da subito Ideale per chi cerca comfort, indipendenza e tranquillità, senza rinunciare alla vicinanza ai principali servizi e al centro di Perugia. Verrà installata una nuova caldaia, sarà imbiancato e rimesso tutto a nuovo.

CARATTERISTICHE

RIFERIMENTO e DATA ANNUNCIO

A Int. 4 - 15/11/2025

CONTRATTO

Vendita

TIPOLOGIA

Appartamento

SUPERFICIE

180 m2

VANI

4

CAMERE

4

BAGNI

2

PIANO

1° piano

ALTRE CARATTERISTICHE

Porta blindata Ripostiglio Videocitofono Accesso Disabili Balcone Giardino Terrazzo Riscaldamento autonomo

Trova il tuo
IMMOBILE IDEALE

Cerco Dove A

Approfondisci ricerca

Prezzo da - a

Mq da - a

ALTRE PROPOSTE DELL'AGENZIA IMMOBILIARE: SINERGIE IMMOBILIARE

ALTRE PROPOSTE PER APPARTAMENTO NEL COMUNE DI PERUGIA

Ricerche più frequenti nel comune di Perugia

Altre ricerche nella provincia di Perugia

Ricerche più frequenti nel comune di Terni

Altre ricerche nella provincia di Terni