Questo sito utilizza cookie, anche di terze parti, per inviarti pubblicità in linea con le tue preferenze ed ottenere statistiche sull'utilizzo del Sito. ACCETTO LEGGI

/ vendita / 4 o più locali / Perugia /

4 O PIÙ LOCALI VENDITA PERUGIA

Perugia (PG)

€ 110.000 180m2 3 3

VUOI SAPERE CHE MUTUO RICHIEDERE? POSSIAMO FINANZIARE FINO AL 95% DEL PREZZO DI ACQUISTO!

SCOPRILO SUBITO

DESCRIZIONE

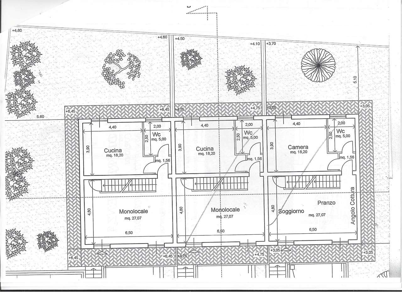
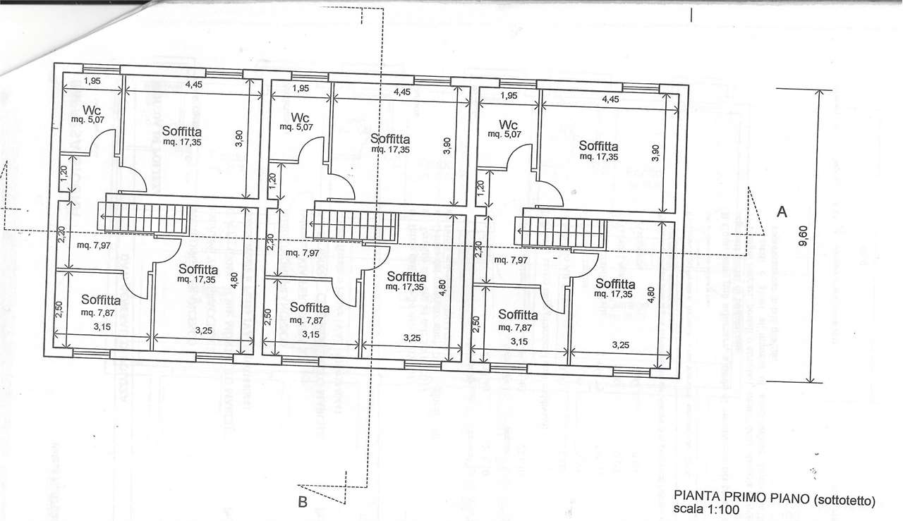
Sinergie Immobiliare Perugia In località Fratticiola Selvatica frazione del comune di Perugia, a circa 20 km ad est di Perugia, da cui si gode un ampio panorama sulla pianura di Assisi, in questo contesto proponiamo in vendita ultima porzione di villa a schiera capotesta di nuova costruzione, ottima posizione e esposizione. \n\nL’unità immobiliare misura 180 mq. suddivisa su tre livelli da circa 60 mq. a livello, più giardino di pertinenza di 200 mq. \n\nComposta da garage e taverna con bagno al piano seminterrato; soggiorno, cucina e bagno al piano terra-rialzato, tre camere, bagno al piano primo. L’immobile attualmente è allo stato grezzo e il prezzo richiesto è di 110.000,00 €. è previsto il chiavi in mano ed è ancora possibile personalizzarne le finiture interne e scelta dei materiali. Il prezzo di listino si intende alla consegna \"chiavi in mano\" escluso il garage e la taverna è di € 160.000,00, con garage e taverna completamente finita € 180.000,00. Tempi di consegna di circa 6/8 mesi. \n\nPer informazioni e programmare una visita ci contattataci. \n\nGiuseppe Casella 3884778338

CARATTERISTICHE

RIFERIMENTO e DATA ANNUNCIO

V001656 - 09/01/2024

CONTRATTO

Vendita

TIPOLOGIA

4 o più locali

SUPERFICIE

180 m2

VANI

7

CAMERE

3

BAGNI

3

ALTRE CARATTERISTICHE

Giardino Riscaldamento autonomo

Trova il tuo
IMMOBILE IDEALE

Cerco Dove A

Approfondisci ricerca

Prezzo da - a

Mq da - a

ALTRE PROPOSTE DELL'AGENZIA IMMOBILIARE: SINERGIE IMMOBILIARE

ALTRE PROPOSTE PER 4 O PIÙ LOCALI NEL COMUNE DI PERUGIA

Ricerche più frequenti nel comune di Perugia

Altre ricerche nella provincia di Perugia

Ricerche più frequenti nel comune di Terni

Altre ricerche nella provincia di Terni