Questo sito utilizza cookie, anche di terze parti, per inviarti pubblicità in linea con le tue preferenze ed ottenere statistiche sull'utilizzo del Sito. ACCETTO LEGGI

/ affitto / negozi / Corciano / ellera /

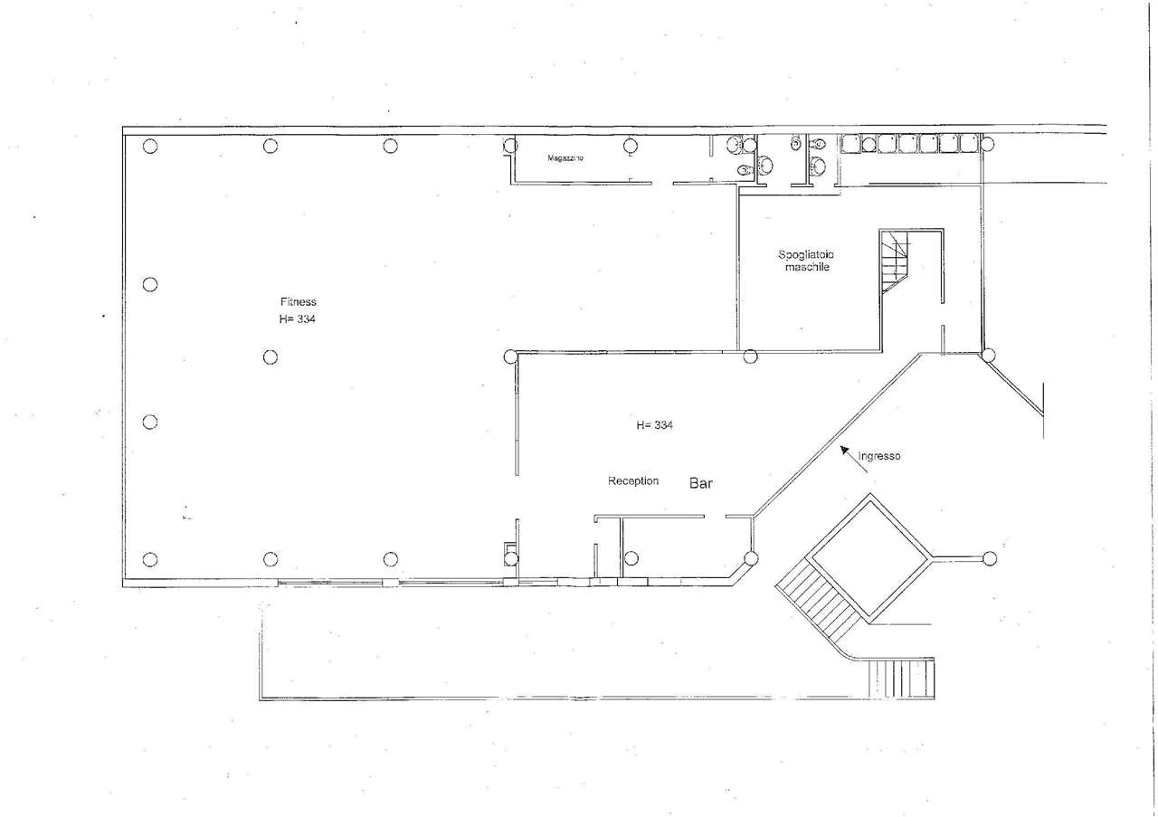
NEGOZIO AFFITTO CORCIANO ELLERA

Corciano (PG) - Ellera

€ 2.500 444m2 2

DESCRIZIONE

Perugia, Ellera di Corciano. In posizione di alto valore commerciale affittasi negozio/ufficio. Già adibito a palestra ma si può ripristinare uso commerciale. Adatto a varie attività per la zona di alto interesse commerciale

CARATTERISTICHE

RIFERIMENTO e DATA ANNUNCIO

A000440 - 09/01/2024

CONTRATTO

Affitto

TIPOLOGIA

Negozio

SUPERFICIE

444 m2

VANI

5

BAGNI

2

PIANO

1° piano

ALTRE CARATTERISTICHE

Terrazzo

Trova il tuo
IMMOBILE IDEALE

Cerco Dove A

Approfondisci ricerca

Prezzo da - a

Mq da - a

ALTRE PROPOSTE DELL'AGENZIA IMMOBILIARE: SINERGIE IMMOBILIARE

ALTRE PROPOSTE PER NEGOZIO NEL COMUNE DI CORCIANO

Ricerche più frequenti nel comune di Perugia

Altre ricerche nella provincia di Perugia

Ricerche più frequenti nel comune di Terni

Altre ricerche nella provincia di Terni